tel. 519 566 144
tel. 519 566 144
Duży i komfortowy dom jednorodzinny, Dom jednorodzinny, wolnostojący, piętrowy z garażem dwustanowiskowym i płaskim dachem. Dodatkowo częściowo zadaszony taras z pergolą drewnianą.
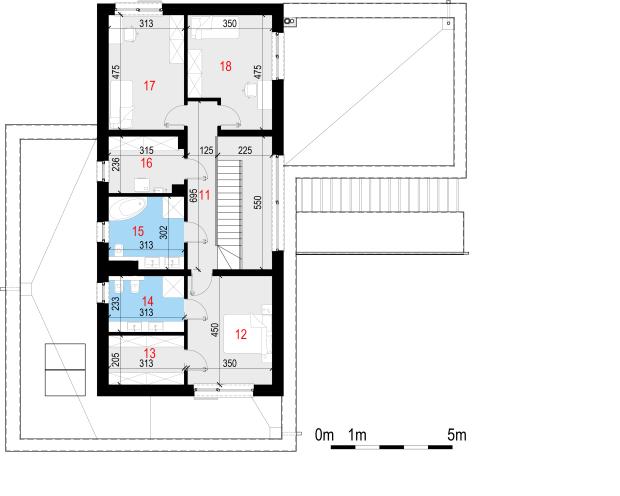
Układ funkcjonalny:
Pokój dzienny z wyjściem na taras, kuchnia z jadalnią, dwa pokoje, dwie łazienki, pralnia, garderoba, spiżarka, garaż, WC, trzy pomieszczenia gospodarcze.
Ściany zewnętrzne: pustak ceramiczny firmy LEIER o gr. 25cm + styropian Termo Organika o gr. 20cm + tynk.
Strop: płytowy żelbetowy monolityczny
Schody: płytowe, żelbetowe, monolityczne, zabiegowe
Stropodach: płyta żelbetowa monolityczna, pokryta membraną dachową.
Źródło ciepła: kocioł gazowy, kominek z płaszczem wodnym na biomasę i zestaw solarny (c.w.u.). Pomieszczenie gospodarcze spełnia wymagania kotłowni na paliwo stałe, w związku z czym na etapie adaptacji istnieje możliwość zmiany sposobu ogrzewania.
Wentylacja: grawitacyjna.
Zadaszenie tarasu: konstrukcja drewniana. Nad tarasem projektowane jest częściowe zadaszenie z pergolą.
Stolarka okienna i drzwiowa: okna i drzwi PVC, rolety zewnętrzne, brama garażowa segmentowa.