prostokąt NAZWA PROJEKTU
prostokąt POWIERZCHNIA m2
od     do
prostokąt tel. 519 566 144 prostokąt tel. 519 566 144

Fortis I PG1

Projekt Fortis I PG1
WERSJA PODSTAWOWA
LUSTRZANE ODBICIE

Projekt Fortis I PG1

powierzchnia użytkowa podstawowa:
powierzchnia pomocnicza:
powierzchnia garażu:
powierzchnia razem:
powierzchnia zabudowy:
kubatura:
kąt nachylenia dachu:
wysokość budynku:
liczba kondygnacji nadziemnych:
143.35 m2
123.47 m2
24.00 m2
278.82 m2
139.59 m2
1324.39 m3
42°
8.48 m
2
 
 
prostokąt tel. 519 566 144 prostokąt tel. 519 566 144
 
 
Cena projektu: 5900,00 zł
RABAT: 1000,00 zł
 
Cena po rabacie: 4900,00 zł
Rabat: od 2026-04-21 do 2026-04-29
 
Najniższa cena z ostatnich 30 dni przed obniżką: 4900,00 zł

Rzuty

Piwnica


01 Komunikacja
02 Pomieszczenie gospodarcze
03 Pomieszczenie gospodarcze
04 Pomieszczenie gospodarcze
05 Pralnia
06 Suszarnia
07 Pomieszczenie gospodarcze
12.34 m2
9.69 m2
30.49 m2
11.94 m2
7.72 m2
11.44 (22.87) m2
7.96 (8.53) m2

Parter


11 Wiatrołap
12 Garaż
13 Łazienka
14 Komunikacja
15 Pokój
16 Pokój dzienny z jadalnią
17 Kuchnia
7.59 m2
12.00 (24.00) m2
7.41 m2
14.93 m2
9.69 m2
30.48 m2
11.94 m2

Poddasze


21 Komunikacja
22 Garderoba
23 Pokój
24 Sypialnia
25 Garderoba
26 Pokój
27 Łazienka
28 Strych
11.31 m2
5.72 (7.93) m2
9.58 (9.69) m2
18.19 (20.68) m2
6.78 (9.27) m2
12.21 (12.36) m2
10.01 (12.51) m2
19.39 (24.01) m2

Elewacje


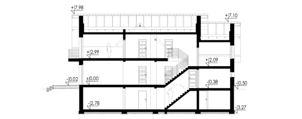
Przekrój


Usytuowanie na działce


Opis projektu

Dom jednorodzinny, wolnostojący, podpiwniczony z poddaszem użytkowym i garażem jednostanowiskowym.

Układ funkcjonalny:

Salon z jadalnią i wyjściem na taras, kuchnia, cztery pokoje, dwie łazienki, dwie garderoby, garaż, pralnia, suszarnia, cztery pomieszczenia gospodarcze.

Technologia i konstrukcja

Ściany zewnętrzne: pustak ceramiczny firmy LEIER o gr.  25cm + styropian Termo Organika o gr. 20cm + tynk.

Schody: piwnica-parter: żelbetowe jednobiegowe; parter-poddasze: żelbetowe dwubiegowe ze spocznikiem; zewnętrzne do piwnicy: betonowe jednobiegowe.

Strop: płyta żelbetowa.

Ścianka kolankowa: wysokość 129cm.

Dach: dwuspadowy, konstrukcja drewniana, pokryty dachówką ceramiczną z lukarnami.

Źródło ciepła: kocioł gazowy, kominek z płaszczem wodnym na biomasę i zestaw solarny (c.w.u.). Pomieszczenie gospodarcze spełnia wymagania kotłowni na paliwo stałe, w związku z czym na etapie adaptacji istnieje możliwość zmiany sposobu ogrzewania.

Wentylacja: grawitacyjna.

Stolarka okienna i drzwiowa: okna i drzwi PVC, rolety zewnętrzne, brama garażowa segmentowa.



Brand: MALACHIT

MPN: 2021070MAL